Dvojpiestový zdvihák Consul 2.35 MKS Optima
Dvoupístový hydraulický podpodlažní zvedák s nosností 3,5 t s volitelným provedením 3-dílných otočných a délkově nastavitelných nosných ramen.- nosnost u všech tvarů nosných ramen 3,5 t
- vodicí i opěrný píst tvrdě pochromované
- elektrohydraulický pohon, externí zvedací jednotka
- mechanická synchronizace (stejnoběh pístů) pomocí příčníku, plus bezpečnostní zařízení
- synchronizace při spouštění pomocí nastavitelných škrticích ventilů
- elektrické ovládání s uzavíracím ventilem
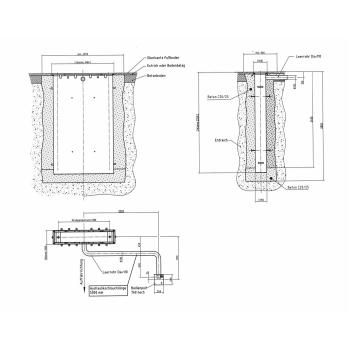
- připojovací příruba pro trubku DN 100 pro odvětrávání vany a jako trubka připojovacího kabelového vedení
- instalační kazeta s žárově pozinkovaným rámem z profilové oceli je součástí dodávky zvedáku
- kryt vany kompletně žárově zinkovaný
- zkušební plaketa GS, odpovídá normě DIN EN 1493, certifikát CE
- vynikající provozní spolehlivost, dlouhá životnost, malé nároky na údržbu
- vysoká kvalita garantovaná renomovaným německým výrobcem
Technické parametry
| Nosnost | 3,5 t |
|---|---|
| Vzdálenost pístů | 1380 mm |
| Čistý zdvih | 1990 mm |
| Průměr pístu | 130 mm |
| Doba zdvihu / spuštění | 35 s |
| Pracovní tlak | 150 bar |
| Množství oleje | 10 l |
| Elektromotor | 400 V / 3,3 kW / 16 A |
| Krytí | IP 54 |
Základní dvoupístovou jednotku 549584 je nutné doplnit volitelnými nosnými rameny:
432120 – nosná část s výkyvnými 3-dílnými rameny, 2-násobně teleskopickými, aretace nosných ramen, nosné talíře z tvrdé gumy a profilem, lze je vyšroubovat o cca 30 mm
Nosnost 3,5 t, výška zdvihu cca 2055 mm, spodní výkyvná výška cca 85 – 115 mm, rozsah nosných ramen cca 640 – 1340 mm.
429001 – nastavitelná vrchní nosná konstrukce v rozsahu 1140 – 2560 mm, nosná část s výkyvnými 3-dílnými rameny, 2-násobně teleskopickými, aretace nosných ramen, nosné talíře z tvrdé gumy a profilem, lze je vyšroubovat o cca 30 mm
Nosnost 3,5 t. výška zdvihu cca 2055 mm, spodní výkyvná výška cca 85 – 115 mm, rozsah nosných ramen cca 620 – 1315 mm, nastavitelná nosná konstrukce 1140 – 2560 mm.
Volitelné příslušenství:
565945 - distanční objímky (4 ks) pro nosná ramena X/Multi dl. 100 mm
641100 - distanční objímky (4 ks) pro nosná ramena X/Multi dl. 12 mm
565952 - distanční objímky (4 ks) pro nosná ramena X/Multi dl. 150 mm
565960 - distanční objímky (4 ks) pro nosná ramena X/Multi dl. 200 mm
397349 - distanční objímky (4 ks) pro nosná ramena X/Multi dl. 35 mm
565937 - distanční objímky (4 ks) pro nosná ramena X/Multi dl. 50 mm
462226 - hydraulický olej (HLP22), plastová nádoba 5 l, vhodný pro všechny zvedáky Consul
366476 - sada (2 ks) přídavné nosné podložky pro terénní vozidla
Objednávka tovaru
3310004290010
429001
429001
CONSUL 429001 Nastavitelná nosná kontrukce s 3-dílnými rameny 3,5t,
€ 8 240,00
3310005659450
565945
565945
CONSUL 565945 Distanční objímky (4 ks) pro nosná ramena dl. 100 mm
na objednávku
na objednávku
€ 395,60
3310006411000
641100
641100
CONSUL 641100 Distanční objímky (4 ks) pro nosná ramena dl. 12 mm
na objednávku
na objednávku
€ 95,60
3310005659520
565952
565952
CONSUL 562952 Distanční objímky (4 ks) pro nosná ramena dl. 150 mm
na objednávku
na objednávku
€ 439,60
3310005659600
565960
565960
CONSUL 565960 Distanční objímky (4 ks) pro nosná ramena dl. 200 mm
na objednávku
na objednávku
€ 443,60
3310003973490
397349
397349
CONSUL 397349 Distanční objímky (4 ks) pro nosná ramena dl. 35 mm
na objednávku
na objednávku
€ 311,60
3310005659370
565937
565937
CONSUL 565937 Distanční objímky (4 ks) pro nosná ramena dl. 50 mm
na objednávku
na objednávku
€ 351,60
3310003664760
366476
366476
CONSUL 366476 Přídavné nosné podložky pro terénní vozy (2 ks)
na objednávku
na objednávku
€ 283,60






