Elektrohydraulické kanálové zdviháky JZ-EH / JZ-EH-E1
Elektrohydraulické jámové zvedáky pro těžší motorová vozidla (příp. jejich agregáty).- elektrohydraulické jámové zvedáky ve standardním provedení s odděleným hydraulickým agregátem nebo s hydraulickým agregátem na zvedáku s nosností 10 t až 20 t a zdvihem 800 mm
- osvědčené použití především v autoopravnách nebo STK s větším počtem zdvihů vozidel, jinak se zpravidla upřednostňují ruční hydraulické jámové zvedáky
- patky jámových zvedáků mají po stranách zaoblené vybrání pro lepší stabilitu zvedané nápravy
- kladky pojezdu a zvedáku jsou osazeny ložisky pro snadné pojíždění po montážní jámě
- rozvody hydraulického oleje v montážní jámě se provádí dle přání zákazníka jako: a) vysokotlaké hydraulické hadice - zavěšené na stěně montážní jámy pomocí lanka,
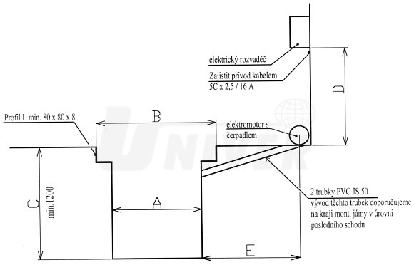
- montážní jáma musí být zhotovena dle normy ČSN 736059 a po celé délce opatřena pojezdovou dráhou z L profilu minimálních rozměrů 80 x 80 x 8 mm
- el. rozvaděč má rozměry 330 x 300 x 120 (výška x šířka x hloubka)
- elektromotor s čerpadlem má 2 provedení (výška x šířka x délka): horizontální 280 x 200 x 900 mm a vertikální 640 x 305 x 255 mm
- vysoká kvalita, provozní spolehlivost a dlouhá životnost
- česká výroba
b) pozinkované hydraulické trubky s rychlospojkami
Při objednávání jámových zvedáků je třeba do objednávky uvést:
A - světlá šířka montážní jámy
B - rozměr pro pojezd jámového zvedáku nebo velikost L profilu, případně jiného profilu (U)
C - hloubka montážní jámy
X - délka montážní jámy
D - vzdálenost el. rozvaděče od podlahy (el. rozvaděč doporučujeme umístit cca 1500 mm nad podlahu a pod něj elektromotor v úrovni schodů do montážní jámy)
E - vzdálenost elektromotoru od stěny k montážní jámě

Elektrohydraulické jámové zvedáky s odděleným hydraulickým agregátem
JZ-EH 10/800 (10 000 kg) ... € 3 913,50
JZ-EH 12/800 (12 000 kg) ... € 4 122,30
JZ-EH 15/800 (15 000 kg) ... € 4 613,30
JZ-EH 20/800 (20 000 kg) ... € 5 099,80
Cena montáže ... € 221,20
Elektrohydraulické jámové zvedáky s hydraulickým agregátem na zvedáku
JZ-EH-E1 13/800 (13 000 kg) ... € 4 595,60
JZ-EH-E1 15/800 (15 000 kg) ... € 4 962,70
JZ-EH-E1 20/800 (20 000 kg) ... € 5 475,80
Cena montáže ... € 110,60


Volitelné příslušenství:
Příčný posuv zvedáku pomocí pastorku a ozubeného hřebene ... € 791,70

Brzda zvedáku / brzdový mechanismus ... € 371,50

TR 8-1908x108 příčná traverza, nosnost 8 t, délka 1908 mm, výška 108 mm ... € 760,80

TR 10-1000x115 příčná traverza, nosnost 10 t, délka 1000 mm, výška 115 mm ... € 598,80

TR 5-3000x100 příční traverza pro trolejbusy SOLARIS, nosnost 5 t ... € 2 406,20

TR/P 800 / přípravek na jámový zvedák pro montáž převodovky ... € 1 132,30

TR/P 1000 SC / přípravek na jámový zvedák pro montáž převodovky Scania ... € 1 273,80

PDMF-PČ-SC / přípravek na demontáž filtru pevných částic Scania ... € 1 273,80
TRAVERZA MAHA 8t / příčná traverza, nosnost 8 t ... € 3 118,30
PS 100 / podpěrný stojan ... € 928,80

JZ-10t / podpěrný systém ... € 1 176,50

U-TRAVERZA 65 / nosnost 10 t, délka 810-930 mm, šířka 170 mm, výška 65 mm ... € 424,60
U-TRAVERZA 65 G / nosnost 10 t, délka 810-930 mm, šířka 170 mm, výška 65 mm + gumová podložka ... € 535,20
Traverza TR 11 MB ACTROS / příčná traverza, nosnost 11 t, délka 820-1150 mm ... € 1 096,90

Sada nástavců / nástavce pro TR 11 ACTROS ... € 172,50
Objednávka tovaru
Niektoré položky nie je možné objednať cez e-shop. V prípade Vášho záujmu nás kontaktujte alebo použite dopytový formulár.

