Mobilné portálové žeriavy
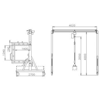
Mobilní portálové jeřáby s použitím pro břemena do 1 t a se zvlášť lehkým pojížděním na čtyřech řízených kolech s brzdou se vyrábějí ve 3 provedeních:PJ-RK RP 1000
s ručním kladkostrojem a ručním pojezdem, nosnost 1000 kg, světlá šířka 3000 mm, celková výška 3500 mm.
PJ-EK RP 1000
s elektrickým kladkostrojem a ručním pojezdem, nosnost 1000 kg, světlá šířka 3000 mm, celková výška 3500 mm.
PJ-EK EP 1000
s elektrickým kladkostrojem a elektrickým pojezdem, nosnost 1000 kg, světlá šířka 3000 mm, celková výška 3500 mm.
Jako zvláštní příslušenství lze vyrobit/dodat C-hák pro vkládání zařízení do vozu.
Cenovou nabídku Vám vypracujeme na vyžádání.
Objednávka tovaru
Niektoré položky nie je možné objednať cez e-shop. V prípade Vášho záujmu nás kontaktujte alebo použite dopytový formulár.



