Nízkozdvižný nožnicový zdvihák Consul 0.30 KH
Nůžkový elektrohydraulický nízkozdvižný / stacionární zvedák (3 t) s délkově nastavitelnými plošinami a velmi nízkou konstrukcí.- instalace na podlahu
- velmi nízká konstrukční výška ve spuštěném stavu
- elektro-hydraulické ovládání v ovládací skříňce
- velmi tichý hydraulický pohonný agregát
- zdvojený hydraulický systém se zdvojenými válci v obou nůžkových částech, proto k nim není třeba přívod stlačeného vzduchu
- plošiny z protismykového plechu s oválnými žebírky
- délku plošin lze z boku nastavit pomocí klapkového mechanismu
- mechanické zajištění stejnoměrného pohybu plošin
- ovládání se systémem mrtvého muže
- bezpečnostní signální tón při spouštění v oblasti nohou
- funkce nouzového spuštění s ochranou proti přetížení
- zvedák lze dokompletovat sadou Mobilset (tažná tyč, 2 namontovatelná kolečka) a zvedák se tak stane mobilním
- GS-zkušební plaketa, DIN EN 1493, CE-certifikát
- mimořádně vysoká spolehlivost a velmi dlouhá životnost
- špičková kvalita (vyrobeno v Německu)
Technické parametry
| Nosnost | 3000 kg |
|---|---|
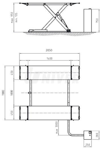
| Výška zdvihu | 105–950 mm |
| Doba zdvihu / spouštění | 30 s |
| Délka plošin | 1400–2030 mm |
| Šířka plošin | 450 mm |
| Mezera mezi plošinami | 1000 mm |
| Délka | 2030 mm |
| Šířka | 1900 mm |
| Výška | max. 950 mm |
| Elektromotor | 2,2 kW |
| Napětí | 400 V / 50 Hz |
| Jištění | 16 A |
| Krytí | IP 54 |
Volitelné příslušenství:
38872.8 upevňovací materiál, 8 reakčních kotev M12, závitové tyčky a podložky
51855.5 galvanicky pozinkované plošiny
38732.4 případné prodloužení standardních hadic od zvedáku k ovládací skříňce / agregátu vždy po 1 m
51282.2 sada Mobilset (tažná tyč, 2 namontovatelná kolečka) pro zvedák Consul 0.30 KH, zvedák se tak stane mobilním
32958.1 sada (4 ks) – elastomerové nosné podložky 250 x 150 x 20 mm
26936.5 sada (4 ks) – elastomerové nosné podložky 250 x 150 x 60 mm
32959.9 sada (4 ks) – elastomerové nosné podložky 250 x 150 x 90 mm
46222.6 hydraulický olej pro veškeré zvedáky Consul s hydraulickým pohonem v 5 l nádobě
Objednávka tovaru
3310003873240
387324
387324
CONSUL 387324 Prodloužení hadic k ovl. skříňce (1 m)
na objednávku
na objednávku
€ 435,60
3310003295810
329581
329581
CONSUL 329581 Elastomerové nosné podložky 250x150x20 mm (4 ks)
na objednávku
na objednávku
€ 99,60
3310002693650
269365
269365
CONSUL 269365 Elastomerové nosné podložky 250x150x60 mm (4 ks)
na objednávku
na objednávku
€ 271,60
3310003295990
329599
329599
CONSUL 329599 Elastomerové nosné podložky 250x150x90 mm (4 ks)
na objednávku
na objednávku
€ 411,60



